お客様データ
- ご依頼No:409件目
- お客様:愛知県K様邸
- 家族構成:親夫婦+子夫婦+子予定
- 新築/リフォーム:2世帯リフォーム
- 規模:鉄骨3階建て
- ビルダー種類:地元工務店
お客様からいただいたお声

こんばんわ。
三階、 若夫婦の部屋の写真です💦
アルバムにまとめてもらったのに、なぜかバラバラ😅
すみません💦
とりあえず手前の方のリビング辺りです。
たたみコーナーは大変気に入っているとのこと。
坂口さんとの相談会がなければ何も考えず部屋が
出来てしまったところだった、と感謝してました☺
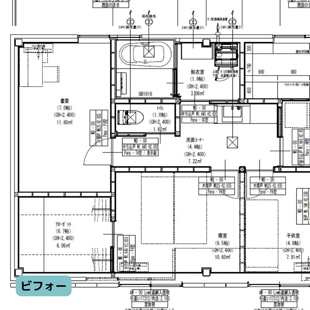
ご相談前とご相談後の提案図面の写真
クリックで拡大表示できます。
- ご相談前の図面
- ご相談後「間取り改善案」の図面

