【409件目】どこに何を置く予定?本気で配置すると入口位置を変えたくなるけど…

どこに何を置く予定?本気で配置すると入口位置を変えたくなるけど…

お客様データ

  • ご依頼No:409件目
  • お客様:愛知県K様邸
  • 家族構成:親夫婦+子夫婦+子予定
  • 新築/リフォーム:2世帯リフォーム
  • 規模:鉄骨3階建て
  • ビルダー種類:地元工務店

お客様からいただいたお声

どこに何を置く予定?本気で配置すると入口位置を変えたくなるけど…

こんばんわ。
三階、 若夫婦の部屋の写真です💦
アルバムにまとめてもらったのに、なぜかバラバラ😅
すみません💦
とりあえず手前の方のリビング辺りです。
たたみコーナーは大変気に入っているとのこと。
坂口さんとの相談会がなければ何も考えず部屋が
出来てしまったところだった、と感謝してました☺

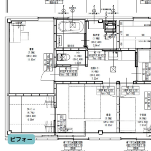
ご相談前とご相談後の提案図面の写真

クリックで拡大表示できます。

© 2026 失敗しない間取り相談